Hugh Broughton Architects

Show menu
The Discovery Building 1
The Discovery Building 2
The Discovery Building 3
The Discovery Building 4
The Discovery Building 5
The Discovery Building 6
The Discovery Building 7
The Discovery Building 8
The Discovery Building 9

The Discovery Building

Modernisation of Rothera Research Station

Show factsheet

Location

Rothera Point, Adelaide Island, Antarctica

Date

2018-2025

Client

British Antarctic Survey

HBA Team

Roxane Baillet, Rita Baltina, Hugh Broughton, Robert Gillan, Helen King, William Lamburn, Steve McCloy, Luca Rendina, Robert Songhurst, Harry Tindale

Collaborators

Ramboll (technical advisers)
Norr (technical advisers)
Turner & Townsend (technical advisers)
BAM (main contractor)
Sweco (delivery consultant)
Billings Design Associates (specialist cladding consultant)

Located on a rocky promontory at the southern tip of Adelaide Island, Rothera Research Station is the British Antarctic Survey’s (BAS) largest year-round research facility and a vital hub for UK and international polar science. Occupied since 1975, the station supports a wide range of scientific disciplines, including biosciences, geosciences, glaciology and meteorology, while also serving as a major logistics centre for BAS operations across Antarctica.

As part of the Antarctic Infrastructure Modernisation Programme, Hugh Broughton Architects is working within the Antarctic Construction Partnership alongside BAM and Sweco, with Ramboll and their partners Norr and Turner & Townsend acting as technical advisers. Central to this multi-year upgrade is the Discovery Building, a new science and operations facility that consolidates multiple specialist functions previously housed in ageing, inefficient structures that had reached the end of their operational life.

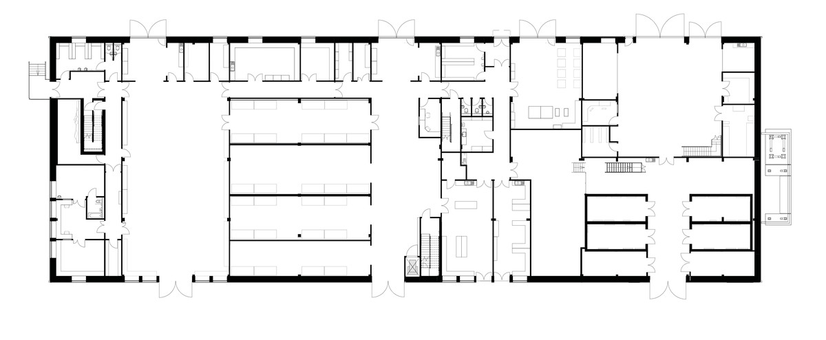
Ground Floor Plan

Ground Floor Plan

Completed in 2025, the two-storey, 4,500 sqm Discovery Building represents a new architectural landmark for Antarctica and sets a benchmark for resilient polar design. Drawing on our extensive experience working in the Polar regions, the building is carefully oriented to the prevailing wind and incorporates a pioneering full-scale wind deflector. The first of its kind in Antarctica, this innovation accelerates airflow down the leeward side of the building, dramatically reducing snow accumulation and long-term maintenance demands.

The building’s pale blue envelope, inspired by the Antarctic sky and designed to withstand high UV exposure, is formed from highly insulated composite panels and triple glazing to deliver exceptional airtightness and thermal performance. A panoramic control tower rises above the monopitch roof, providing 360-degree views across the runway, wharf and station.

The Discovery Building will consolidate the function of 9 existing buildings on the station

The Discovery Building will consolidate the function of 9 existing buildings on the station

Internally, the Discovery Building brings together preparation areas for field expeditions, workshops, medical facilities, offices, recreational spaces, a central store and critical plant services. Vibrant colours, roof lights and open-plan collaboration areas enhance wellbeing, support team cohesion and help mitigate the effects of long polar winters. Transparent internal glazing enables passive monitoring, supporting health and safety for the small winter crew, while robust, proven technologies ensure reliability in the harsh Antarctic climate.

Concept sketches illustrating the use of vibrant colours to sustain the crew's wellbeing

Concept sketches illustrating the use of vibrant colours to sustain the crew's wellbeing

Environmental stewardship has been integral to the project. Designed in accordance with BAS sustainability policies and a bespoke BREEAM accreditation developed specifically for Antarctic conditions, the Discovery Building is NERC’s first BREEAM-certified project in Antarctica. The modernisation significantly reduces energy consumption, water use, maintenance requirements and snow-clearance demands, securing a more resilient and sustainable future for Rothera Research Station and reinforcing its role as a centre of excellence for polar science and international collaboration.

Lord Patrick Vallance, Minister of State for Science, Research, Innovation and Nuclear said:

"Britain has a proud history of polar science driven by curiosity and discovery. The Discovery Building ensures we remain at the forefront of Antarctic research, providing a hub for collaboration as we work with international partners to tackle shared global challenges. This investment backs world-class research that is crucial to understanding and responding to climate change, helping us adapt to and mitigate the impacts facing people worldwide."

Professor Dame Jane Francis, Director of teh British Antarctic Survey said:

“The fantastic new Discovery Building and our programme of modernisation at Rothera offer UK and international researchers the facilities needed to enable science and operations at Rothera and in the deep field for decades to come. We’re incredibly excited to see the building come to life on our 50th anniversary. It’s been an intense period of work in the most challenging construction site in the world – I look forward to the opportunities it offers for collaborative polar science and operations in Antarctica.”

Legacy

Voyage of Discovery

News 6 February 2026

Voyage of Discovery

The British Antarctic Survey’s £100m scientific support and operations facility, the two-storey 4500m2 Discovery Building, has been officially opened at Rothera Research Station. Completion of the building marks a major milestone in the long-term modernisation of the station and establishes a world-class home for cutting-edge Antarctic science and operations.

Read more